Erny Architektur Rust

Rheingießenhalle Rust

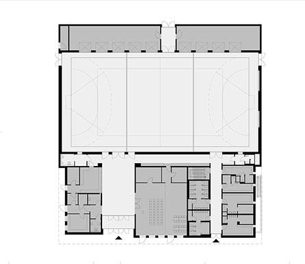
Neubau Schul- und Sporthalle mit Mehrzwecknutzung

Franz-Sales-Str. 13     77977 Rust     FON +49 (0)7822-865986     FAX +49 (0)7822-865987     info@erny-architektur.de

Impressum

DSVGO