Erny Architektur Rust

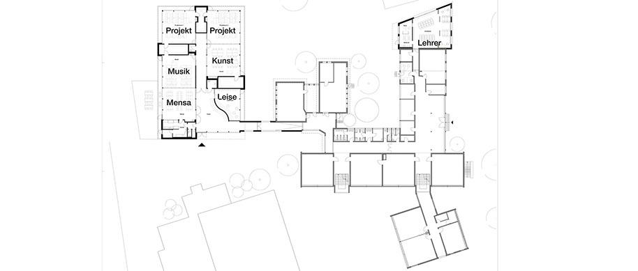
Umstrukturierung der Ferdinand-Ruska-Schule zur Gemeinschaftsschule

Neubau Mensa mit Fachräumen, Anbau Lehrerbereich

Franz-Sales-Str. 13     77977 Rust     FON +49 (0)7822-865986     FAX +49 (0)7822-865987     info@erny-architektur.de

Impressum

DSVGO